集成式一體化溫度變送器的主要特點和安裝方法
首先,集成溫度變送器的主要特點
1,多個范圍選擇;
2,數字,液晶溫度顯示;
3.測量方便;
4,反向極性保護和有限的流動保護;
5,抗雷電,抗沖擊;
6,基本上安全防爆;體積小,外形美觀,性能高,成本高;
7,精度高,穩定性高,可靠性高
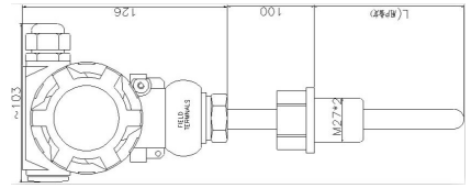
二,集成溫度變送器產品尺寸

第三,集成溫度變送器電線
信號端子設置在電箱的獨立艙內。接線時,可以擰下布線側的表面蓋。電源通過信號線連接到發射器,并且不需要額外的布線。

雙絞線可用于信號線。在電磁干擾的情況下,建議使用屏蔽線并正確地接地。信號線不會與其他電源線或在同一線槽中戴金屬管,并且不會通過電源。
變送器電氣殼體上的螺紋孔應密封或插入(密封膠水),以避免電殼中的水分積聚。如果螺紋孔未被密封,則當發射器安裝時,應拆下螺紋孔以消除液體。
信號線也可以浮動或在信號電路中的任何點上,換能器殼體也可以接地或未接地。
由于發射器耦合到內耦合,因此絕緣電阻不能用作高于100V的MegoHM計,并且電路檢查應不大于45V。
溫度變送器是將熱電偶或熱電阻傳感器轉換為電信號,然后將信號饋送到發射器的輸入網絡中,網絡包含歸零和熱電偶補償等。
當輸入到運算放大器的零調整信號時,信號被放大,并且通過V / I轉換器計算放大的信號。處理4-20 mA直流電流后;在A / D轉換器前進到標題顯示之后,將處理另一個。
發射器有兩個線性電路,并使用兩種反饋方法。用正反饋模式校正熱阻傳感器,并用多級折疊校正熱電偶傳感器。集成的數字顯示溫度變送器有兩個顯示模式。
LCD顯示的溫度發射器以雙線模式輸出。 LED顯示的溫度變送器在跳閘中輸出。
溫度變送器功能溫度變送器采用進口傳感器溫度敏感元件,使用計算機激光級進行溫度補償,并使用集成的接線盒設計。易于擁有專用終端和數字顯示,安裝,檢查和維護。該系列產品適應石油,水利,化工,冶金,電力,輕工,科學研究,環保等企業和工業單位,實現液體溫度的測量,適用于全天候環境和各種腐蝕性液體。
多個范圍選擇;數字,液晶溫度顯示;測量測量;反極性保護和有限的流動保護;防雷沖擊,抗沖擊;基本安全爆炸:小尺寸,外形美觀,成本高,精度高,穩定性高,可靠性高;
溫度變送器電線信號端子設置在電箱的獨立艙內。接線時,可以擰下布線側的表面蓋。電源通過信號線連接到發射器,并且不需要額外的布線。
集成的熱電阻溫度變送器是可安裝到熱阻的接線盒中的溫度變送器。
集成溫度變送器通常由溫度測量探針(熱電偶或熱阻傳感器)和雙線固體電子單元組成。溫度測量探頭直接安裝在固體模塊形式的接線盒中,以形成集成的變送器。
集成溫度變送器通常分為兩種類型的熱阻和熱電偶。
熱阻溫度變送器由參考單元,R / V轉換單元,線性電路,反向保護,電流限制保護,V / I轉換單元等組成。在熱阻信號的溫度放大后,然后線性電路補償溫度和電阻之間的非線性關系。在V / I轉換電路輸出與測量溫度的線性關系的4至20mA的恒定電流信號之后。
溫度發射器通常由參考源,冷端補償,放大單元,線性化過程,V / I轉換,斷裂和電路單元(例如反向保護)組成,諸如反向保護的電路單元,電流限制保護。
它是由熱電偶產生的熱電偶由冷端擴大,并且將重新蓋從線性電路移除到熱電電位的非線性誤差和溫度,并且在4至20 mA轉換為4至20 mA電流輸出信號。
為了防止熱電偶因電擊電力電力而導致事故,發射器中存在電源故障保護電路。當熱電偶破壞或負負負離子時,發射器輸出*大值(28mA)以轉動儀表以切割電源。
溫度變送器結構簡單,耐熱,輸出信號大,抗干擾能力強,線性,簡約展示儀,固體模塊的防潮,防潮,防潮,流動保護有限,可靠的工作可靠,可靠的工作。溫度變送器的輸出是統一的4至20 mA信號;可與微電腦系統或其他傳統儀器一起使用。還可以制造爆炸爆炸或火敏測量儀器。
雙絞線可用于信號線。在電磁干擾的情況下,建議使用屏蔽線并正確地接地。信號線不會與其他電源線或在同一線槽中戴金屬管,并且不會通過電源。
變送器電氣殼體上的螺紋孔應密封或插入(密封膠水),以避免電殼中的水分積聚。如果螺紋孔未被密封,則當發射器安裝時,應拆下螺紋孔以消除液體。信號線也可以浮動或在信號電路中的任何點上,換能器殼體也可以接地或未接地。由于發射器耦合到內耦合,因此絕緣電阻不能用作高于100V的MegoHM計,并且電路檢查應不大于45V。
騰泰儀表推薦
相關公司動態
- TT-UFZ簡易式重錘浮標液位計和TT-UFZ翻板式重錘浮標液位計的區別
- 定制HC膜片液位變送器TT-2088G-2M
- 1/2螺紋特殊定制阻旋料位開關
- 差壓變送器一般常見故障
- 氣體渦輪流量計的工作原理和日常維護
- 超聲波明渠流量計的技術參數和接線方法
- 手持式超聲波流量計的工作原理和主要用途
- 流量差報警儀的應用范圍、基本參數和操作方法
- 智能流量積算儀的概述和基本操作
- 電浮筒液位計的原理和應用范圍
- 投入式液位變送器原理、結構及安裝調試
- 智能旋進旋渦流量計的使用方法及參數切換設置
- 液位上下限報警控制、液位高低報警控制及無線
- 超聲波液位計的裝置與設置
- 防爆型超聲波液位計的裝置方式及注意事項
- 氣體腰輪流量計的造型要求和安裝注意事項
- 旋進旋渦流量計與氣體渦輪流量計的主要區別
- TT-LWGY系列渦輪流量計的用途和原理
- 孔板流量計的特點
- TT-UQK浮球液位控制器的調試和安裝
- 磁翻板液位計的安裝保養
- 氣體渦輪流量計如何安裝
- 分體式超聲波液位計接線圖
- 投入式液位變送器在靜、動水中的電氣連接
- 導波雷達物位計測量原理技術要求
- 插入式電磁流量計安裝要求
- 氣體渦輪流量計的使用和維護
- 孔板流量計的安裝要求和維護注意事項
- 浮標液位計的安裝與使用
- 雙金屬溫度計的種類和用途

